Баня 15м2 Панорама
Компания "ТеремОк48" это качество и надежность во всем!




|
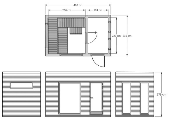
КОМПЛЕКТАЦИЯ КАРКАСНОЙ БАНИ Размер 2,4м на 4м |
|
|
Обвязочный венец |
Не строганные, лаги из спаренной обрезной доски 50х150 Производится обработка мастикой или отработанным маслом. |
|
Лаги |
Не строганный брус 50х100мм, с шагом 600 мм. Производится обработка биозащитой Неомид |
|
Черновой пол |
нет |
|
Чистовой пол |
Строганная шпунтованная доска 32 мм. |
|
Каркас |
Доска обрезная 50х50 |
|
Утепление стен, потолка |
Минеральная вата КНАУФ в плитах (Knauf) 50мм |
|
Утепление пола |
нет |
|
Перегородки |
Каркасные из бруска сечением 50х50мм. |
|
Высота |
2200-2300 (увеличенная высота потолка!!!) |
|
Балки перекрытия |
Брус 50х100мм., с шагом 600мм. |
|
Паро-гидро изоляция |
Ветро и пароизоляция в 2 слоя |
|
Внутренняя отделка |
Вагонка хвойных пород, принудительной сушки. Класс «В»: потолок и перегородки. На все стыки стен, углов и потолка монтируется хвойный плинтус. Для отделки используются пневмоинструмент (полускрытый крепеж) |
|
Парное отделение |
Отделывается осиновой вагонкой класс «В» , доп. обрешетка с вензазором, фольга с проклейкой швов. Монтируются осиновые, двух ярусные полоки. Для проветривания помещения устанавливается форточка размером 400х400мм. Устанавливается электрическая, банная печь финская Harvia. Камни для печи 20кг. |
|
Моечное отделение |
без него |
|
Окна |
Стеклопакет триплекс в деревянной раме (глухие), панарамные 1400х1900 (1шт) 450х1200мм. (1шт) Пвх 600х1900 (2шт) одно поворотно\откидное |
|
Двери |
Входная дверь ПВХ стекло в пол в парную закаленное стекло. |
|
Электрика |
Баня оснащена автоматом на 16А,к-том розеток , выключателями ,и влагостойкими светильниками. Монтаж электропроводки скрытый. |
|
Стропильная система |
Крыша односкатная, высота бани общая в коньке 2700мм. Стропильная система выполняется из бруса 50х100мм. Обрешетка из обрезной доски 25мм. |
|
Кровельное покрытие |
Цветной профлист С21 0,45мм |
|
Наружная отделка стен и покраска |
Производится наружная пропитка бани согласно проекту, имитация бруса АВ, Углы закрываются цветными металлодоборами. |
|
Доставка |
Рассчитывается отдельно. |
|
ДОПОЛНИТЕЛЬНЫЕ ОПЦИИ |
|
|
Свайный фундамент (тр80х80 с бетонированием 12шт)
Верхняя обвязка трубой 80х80 |
25500 руб.
13000 руб. |
|
Уличные светильники 2х сторон. 4шт. |
14500 руб. |
|
Светильники спот с комнате отдыха |
4000 руб. |
|
Утепление пола 50мм |
10800 руб. |
|
Комплект мебели |
25000 руб. |
|
Прочий декор под ключ |
в ПОДАРОК |
|
Выезд монтажников |
7500 руб. |
|
Дровник на 1м3 |
13000 руб. |
|
Терраса из лиственницы «В» под ключ. |
150 000 руб. |
При не возможности разгрузки мнипулятором, можем предоставить услугу Сборка по месту + 20% от стоимости.