МОДУЛЬНЫЙ ДОМ СКАНДИНАВИЯ

*больше фотографий в альбоме ниже
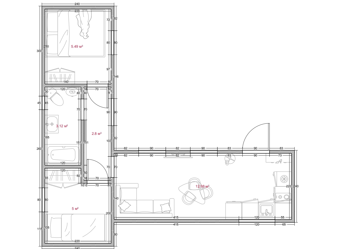
МОДУЛЬНЫЙ ДОМ "СКАНДИНАВИЯ"
Размер 2,4х8,0м и 2,4х6,0 (по свесам кровли).
Высота потолка: внутри - 2,25-2,15м, снаружи - 2,7м.
Каркас - брус хвойных пород.
Утепление - минеральная вата Роквул 100мм (пол, стены, потолок), пароизоляции, ветро-влагозащита.
Отделка снаружи - лицевая сторона имитация бруса 21мм кат. "С" с покрытием "Акватекс Викинг" (цвет "Калужница"), задняя и боковые стороны: гофрированный лист "С8" оцинкованной стали (0,45) с декоративно-защитным покрытием RAL7024 (Графит), декор (рейки) в подарок.
Отделка внутри - имитация бруса 21мм кат. "С" с покраской EUROTEX (цвет "Ваниль"). Перегородки из имитации бруса 21мм кат. "С" с утеплением (минеральная вата Роквул 50мм).
Кровля - односкатная крыша из гофрированного листа "С21" оцинкованной стали (0,45) с декоративно-защитным покрытием RAL7024 (Графит).
Окна - однокамерный стеклопакет с внешней ламинацией (цвет: "Антрацит"): ПВХ 900*1900-2100 глухое - 3 шт., ПВХ 800*1000 поворотно-откидное - 1 шт., ПВХ 550*900 фрамужного типа - 1 шт., ПВХ 450*450 фрамужного типа - 1 шт.
Пол - с оцинкованным дном, шпунтованная доска 36мм кат. "С", ламинат\КвикДек/кварцвинил, плинтус дерево.
Межкомнатные двери - МДФ (OPTIMA PORTE) c фурнитурой.
Входная дверь - ПВХ 900*2000 с внешней ламинацией (цвет: "Антрацит").
Электрика - модульный дом оснащен автоматами (16А и 25А), комплектом розеток, выключателями и влагостойкими светильниками (в т.ч. уличными). Монтаж электропроводки скрытый.

Цена 1 208 000 рублей*
Свайный фундамент с обвязкой + 50 000 руб.
Веранда с открытым патио с фундаментом и монтажом 2,5*6,0 + 150 000 руб.
Разводка воды, канализация (унитаз, душевая, водонагреватель - материалы + работа) + 24 000 руб.
Разводка воды, канализация на кухню (материалы + работа) + 5 900 руб.
Доставка манипулятором рассчитывается отдельно.
Форма оплаты любая: НАЛ, БЕЗНАЛ, РАССРОЧКА, КРЕДИТ.
Консультацию можно получить по телефону у специалиста: +7(951)306-57-82
*Стоимость актуальна на момент публикации. Предложение не является публичной офертой

